• Wysoka Wielka z lotu ptaka
    Wysoka Wielka z lotu ptaka
  • Dwór w Głogowcu
    Dwór w Głogowcu
  • Zespół dworsko - parkowy w Leszczynku w nocnej odsłonie
    Zespół dworsko - parkowy w Leszczynku w nocnej odsłonie
  • Pałac w Malinie
    Pałac w Malinie
  • Szkoła w Byszewie
    Szkoła w Byszewie
  • Urząd Gminy Kutno - obchody Narodowego Święta Niepodległości
    Urząd Gminy Kutno - obchody Narodowego Święta Niepodległości
  • Kościół pw. św. Bartłomieja w Strzegocinie
    Kościół pw. św. Bartłomieja w Strzegocinie
  • Urząd Gminy Kutno
    Urząd Gminy Kutno

    Siedziba Urzędu Gminy Kutno

  • Centrum Kultury Gminy Kutno
    Centrum Kultury Gminy Kutno

    Siedziba CKGK w Leszczynku w nowej odsłonie

  • Centrum Kultury Gminy Kutno
    Centrum Kultury Gminy Kutno

    Siedziba CKGK w Leszczynku w nowej odsłonie

  • Dworek w Głogowcu
    Dworek w Głogowcu
  • Widok na staw w  zespole dworsko-parkowym w Leszczynku
    Widok na staw w zespole dworsko-parkowym w Leszczynku
  • Kościół w Strzegocinie
    Kościół w Strzegocinie
  • Zespół dworski w Strzegocinie
    Zespół dworski w Strzegocinie

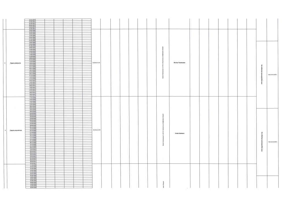
Szczegółowy harmonogram wsparcia dla szkoły podstawowej w Gołębiewku

b2ap3_large_gmina-kompetencje

  Poniżej przedstawiamy szczegółowy harmonogram wsparcia dla szkoły podstawowej w Gołębiewku Nowym w ramach projektu "Gmina Kutno stawia na kompetencje".

szczegolowy-harmonogram-wsparcia_Golebiewek
2.1 mb

Dane adresowe

Urząd Gminy Kutno

ul. Witosa 1

99-300 Kutno

Kontakt

tel: 24 355 70 20

fax: 24 355 70 20

e-mail: sekretariat@gminakutno.pl

Godziny urzędowania

poniedziałek - piątek: 

w godzinach: 07:30-15:30